Eladó családi ház Ádánd 57 900 000 Ft

Leírás

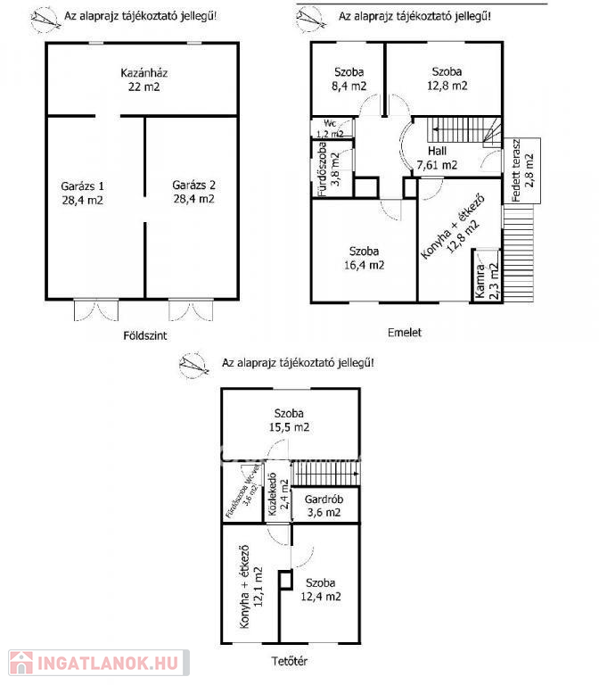
Ádánd, Siófoktól 10 km-re eladó egy bruttó 300 m2, nettó kb. 190 m2-es kertes családi ház 1006 m2 rendezett zöld telekkel. Az ingatlan 3 szintes, a földszinten egy dupla garázs és kazánház található. A bejárat az ingatlanba egy külső lépcsőn keresztül közelíthető meg. A bejárati ajtón belépve egy hallba lépünk. A jelenleg lakott szinten étkezős konyha, kamra, 3 szoba, fürdőszoba, külön wc helyiségek vannak. Felújítás ezen a szinten nem történt még. A hallban elhelyezett belső lépcsőn keresztül jutunk a tetőtérbe, ami teljes felújításon esett át, mind a villany, mind a vízvezetékek tekintetében. A fürdőszoba még szaniterezésre és burkolásra vár. Itt két kényelmes hálószoba, gardrób szoba, étkezős konyha helyiségek találhatóak. Az összes nyílászáró már rétegezett, új műanyagra lett cserélve. Az épület garázsfalai beton, míg az emeletek téglából épültek, szerkezetileg erős, masszív ház. A fűtés jelenleg vegyestüzelésű kazánnal és alternatívaként gázkazánnal, radiátor hőleadókkal megoldott, tetőtérben pedig egy klíma is helyet kapott. Ádánd híres-neves Mandulás-hegyére panorámás kilátás nyílik a tetőtérből. A kert gyönyörűen füvesített, rendezett és karbantartott, nyári forró napokon természetes árnyékot adó fák alatt hűsölhetünk. Az ingatlan értékét központi elhelyezkedése tovább növeli, 300 m-en belül, mindösszesen 5 perc sétatávolságra bevásárlási lehetőség, gyógyszertár, orvosi rendelő, óvoda, önkormányzat, tömegközlekedés. Kiváló választás családbővítés, összeköltözés, nyaralás vagy nyaraltatás szempontjából, minden korosztály megtalálhatja számításait! Ádánd egy rendkívül összetartó, gyorsan fejlődő, fiatalodó község, kedves szomszédokkal, remek kirándulós lehetőségekkel.
Az ingatlan rendezett tulajdonviszonyú, tehermentes. Irodánk az ingatlanközvetítés mellett pénzügyi finanszírozás és biztosítási igényekben is rendelkezésre áll. További információkért kérem keressen nyugodtan telefonon a hét minden napján! M307020

Referencia szám: M307020

Családi ház részletei

Ár: 57 900 000 Ft
Méret: 190 négyzetméter
Azonosító: 11548561
Irodai azonosító: M307020-4980818
Telek: 1006 négyzetméter
Ingatlan állapota: Átlagos
Jelleg: családi ház
Építőanyag: Tégla
Fűtés jellege: Egyedi
Fűtés módja: Gáz
Komfort fokozat: Komfort
Kor: 21-50 éves
Szintek száma: 1 szint
Egész szobák: 5

Egyéb jellemzők

  • Garázs

Térkép