Eladó családi ház Balatonakarattya 349 000 000 Ft

Leírás

ELADÓ 4 szobás, 150 m2-es modern, új építésű családi ház a Balaton partjától 150 méterre Balatonakarattyán!

Balatonakarattya csendes, vízparti utcájában található ez az új építésű, 2022-ben épült modern, erdei környezetben található családi ház.

Lokációja kiváló: A legközelebbi szabadstrand mindössze 150 méterre található az ingatlantól, ráadásul a még nem felkapottak egyike, így garantált a nyugodt környezet és kikapcsolódás is egyben. Az utcában többségében nyaralókkal és kerékpárosokkal találkozni, tehát nem forgalmas és mégis közel a 71-es főúthoz (1.5 km).

Egyedi megoldások, beépített bútorok, dizájnos helyiségek jellemzik a házat. Extraként a földszint teraszán is ki lett alakítva egy kerti zuhanyzó továbbá az emeleten elhelyezésre került egy jakuzzi is, amiből részben Balatoni panoráma nyílik évszaktól függően.

A lakás helyiségei:

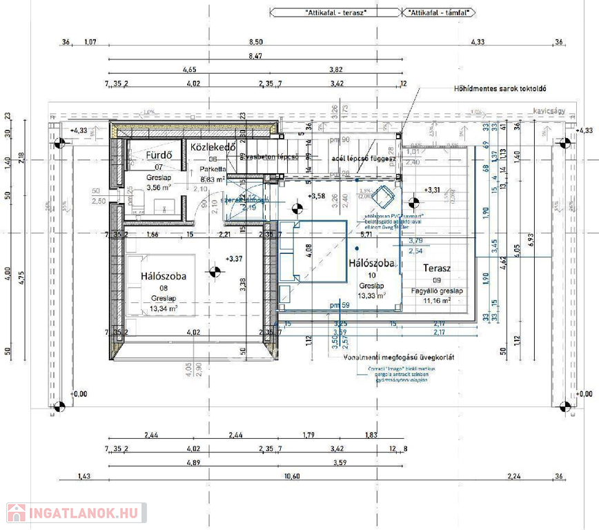
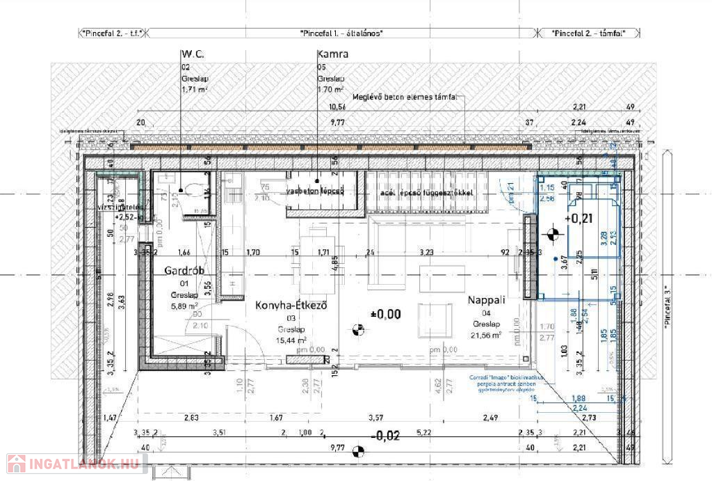
FÖLDSZINT:
- 37 m2-es amerikai konyhás nappali
- 8 m2-es szoba
- 5,9 m2-es gardrób
- 1,7 m2-es kamra
- 1,7 m2-es WC
- 68 m2-es terasz
- 1 m2-es kerti zuhanyzó

EMELET:

- 13,3 m2-es szoba
- 13,3 m2-es szoba
- 3,5 m2-es fürdőszoba
- 8,9 m2-es közlekedő (belső acél lépcsőfeljáró függesztőkkel)
- 11,2 m2-es terasz

IDE MÁR CSAK BEKÖLTÖZNI KELL!

Az ingatlan előre egyeztetett időpontban megtekinthető!

Az OTP Ingatlanpont teljes körű ügyintézéssel áll az eladók és a vevők rendelkezésére!
A kínálatunkból választott ingatlan finanszírozásához kedvezményes hitel- és lízingkonstrukciókat, megoldásokat kínálunk.

Az adásvételi szerződés megkötéséhez igény szerint megbízható ügyvédi közreműködést biztosítunk, és segítséget nyújtunk az adásvételhez kapcsolódó ügyek intézéséhez.

Referencia szám: M292740

Családi ház részletei

Ár: 349 000 000 Ft
Méret: 150 négyzetméter
Azonosító: 11548593
Irodai azonosító: M292740-4980779
Telek: 640 négyzetméter
Ingatlan állapota: Épülő
Jelleg: családi ház
Építőanyag: Tégla
Fűtés jellege: Villany
Fűtés módja: Villany
Komfort fokozat: Dupla komfort
Kor: Új építésű
Szintek száma: 1 szint
Egész szobák: 4

Egyéb jellemzők

  • Garázs

Térkép