Eladó családi ház Siófok 125 000 000 Ft

Leírás

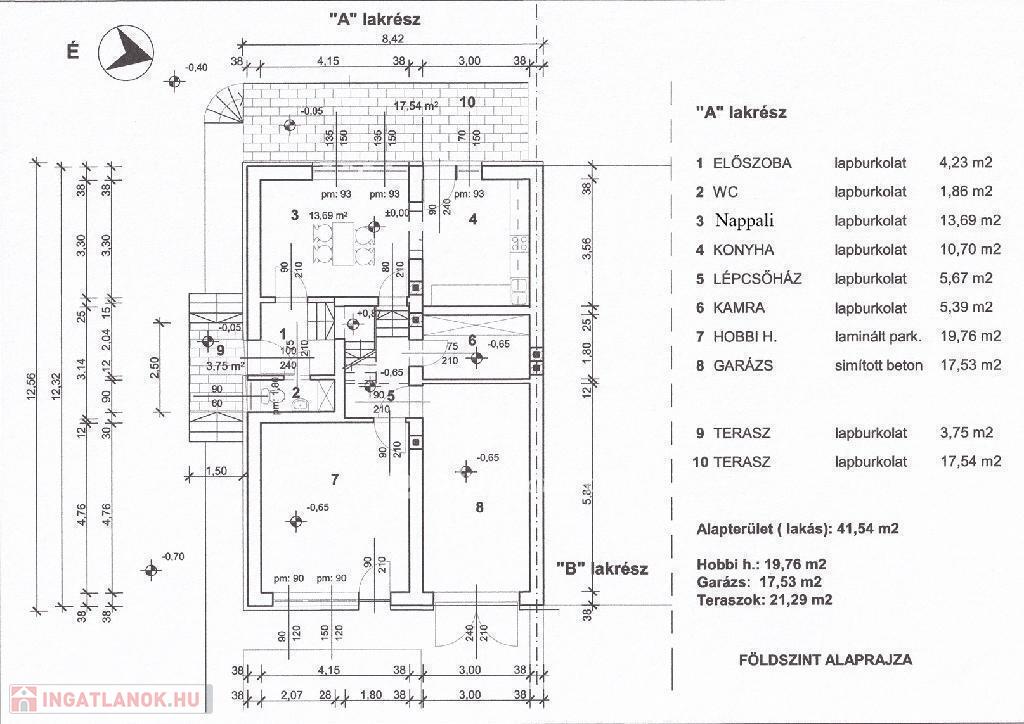
Siófok csendes kertvárosi részén 188,9 m2-es kertes ikerház egyik fele 469 m2-es telekkel eladó. Az ingatlan 1985-ben épült téglából. A nyílászárókat már műanyagra cserélték. A ház külső 12 cm-es grafitos, a tető pedig üveggyapot szigetelést kapott. A fűtés jelenleg gázkonvektor, mika kazán, és hőtárolós gázkazánnal biztosított, de a tulajdonosok a földszinten egy kályhát is meghagytak. A vízvezeték a földszint és az első szint között már részben cserélve lett amikor a fürdőszoba felújításra került. Az ingatlan remek elosztású, szinteltolásos, a belső lépcsőház akár könnyedén külön bejáratúvá is tehető. Az félszuterén szinten egy 17,5 m2-es garázs, kamra és egy tágas hobbi helyiség található, mely funkcióját tekintve számos lehetőséget rejt magában. A földszinten előszoba, amerikai konyhás nappali, WC. Az első félszinten egy tároló, mely korábban vagy akár újabban konyha és egy szoba, a második és harmadik szinten pedig 2-2 tágas nagy szoba, fürdőszoba és külön elszeparálva WC található. Egész nap gyönyörű napsütés árad be, mely még világosabbá, nagyobbá, és melegebbé teszi a tereket. Az ingatlanhoz tartozik továbbá az épület mögött található 75 m2-es gazdasági épület fele, mely egy előtér, fürdő, WC, konyha és kamra helyiségekből áll. A telek szépen füvesített, a nyári rekkenő hőségben egy hatalmas mandula fa ad árnyékot. Az ingatlan értékét tovább növeli az elhelyezkedése, 100 méteren belül bevásárlóközpontok, benzinkutak. Kiváló befektetési lehetőség akár nyaraltatás, akár állandó lakhatás céljából. Családok számára is a legjobb választás, hatalmas élettér, udvar, azonnal költözhető, tehermentes. Siófok belvárosa mindösszesen 5 perc-15 autóút, a biciklizni vágyók számára pedig végig kiépített bicikli út a Balaton-partig.
Irodánk az ingatlanközvetítés mellett pénzügyi finanszírozás és biztosítási igényekben is rendelkezésre áll.

M299192
Otthon Start Hitelprogram

Referencia szám: M299192

Családi ház részletei

Ár: 125 000 000 Ft
Méret: 188 négyzetméter
Azonosító: 11559697
Irodai azonosító: M299192-5016364
Telek: 469 négyzetméter
Ingatlan állapota:
Jelleg: ikerház
Építőanyag: Tégla
Fűtés jellege: Konvektoros
Fűtés módja: Gáz
Komfort fokozat: Komfort
Kor: 21-50 éves
Szintek száma: 2 szint
Egész szobák: 5
Fél szobák: 1

Egyéb jellemzők

  • Garázs

Térkép