Eladó családi ház Siófok 159 900 000 Ft

Leírás

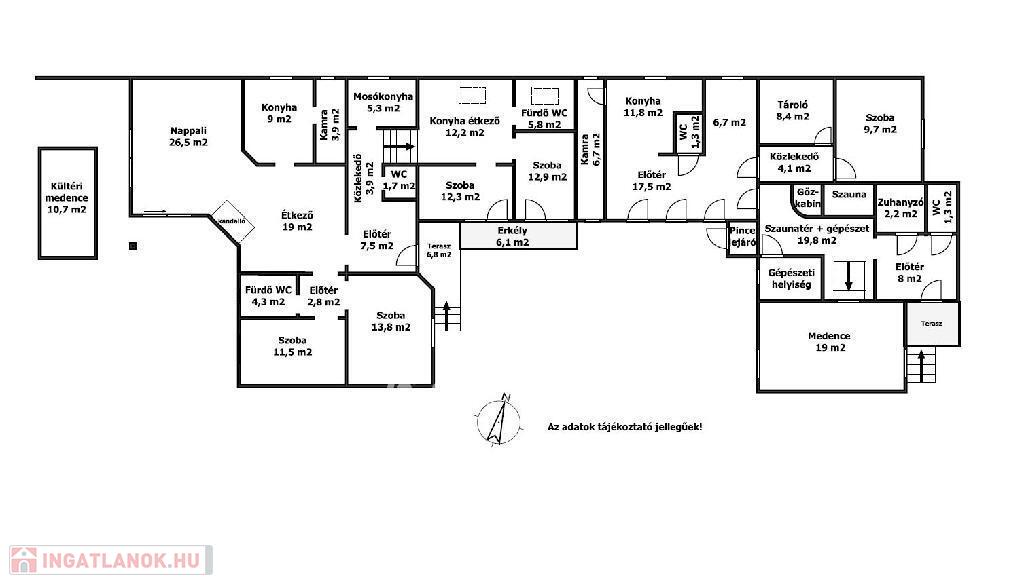
Eladásra kínálok a Balaton déli partján, Siófokon egy 269 m2 összes alapterületű, 2 db családi házat egy telken. Az ingatlan a Belvárosban, központi vegyes területen helyezkedik el. A telek területe 959 m2. A valamikor szebb napokat látott lakóingatlan felújítása után több generáció együttélésére alkalmas. Az utca felőli 116 m2-es lakóház komplett wellness egységgel rendelkezik (beltéri medence, gőzkabin, infra-finn szauna). Az épület részben alápincézett. A hátsó, 152 m2-es lakóház alagsorában egy 44 m2-es dupla garázs is helyet kapott. Ehhez a lakóházhoz a hátsó kertben kültéri medence épült. Az ingatlannak jelenleg nincs fűtése. Az elektromos áram és a gáz ki van építve a lakóházakban, a mérőórák leszerelésre kerültek, ezek újbóli igénylése, kiépítése az új tulajdonos feladata lesz. A Balaton-part, siófoki Nagystrand 500 méter, a városközpont 600 méter távolságban van. Megtekintésért várom megtisztelő hívását!

Referencia szám: M291906

Családi ház részletei

Ár: 159 900 000 Ft
Méret: 253 négyzetméter
Azonosító: 11449267
Irodai azonosító: M291906-4798232
Telek: 959 négyzetméter
Ingatlan állapota: Átlagos
Jelleg: családi ház
Építőanyag: Tégla
Fűtés jellege: Egyéb
Komfort fokozat: Komfort nélkül
Kor: 21-50 éves
Szintek száma: 1 szint
Egész szobák: 7

Egyéb jellemzők

  • Garázs

Térkép