Eladó családi ház Zamárdi 170 000 000 Ft

Leírás

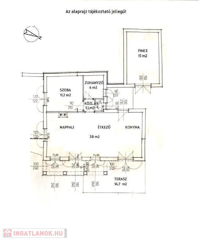
Zamárdi-Kóhegyen nyaralónak, állandó otthonnak, kereskedelmi szálláshelynek egyaránt tökéletesen alkalmas kiváló állapotú két lakrészes ház eladó 2500 m2-es hangulatos, intim telken. Az épület két lakása külön bejáraton megközelíthető, így két generáció együttélésére, nyaralására, vagy kiadásra ideális. 3 évre érvényes 2 csillagos szálláshely minősítéssel rendelkezik, mely átruházható az új tulajdonosra. A földszinti épületrész 2008-ban épült, a tetőráépítés 2019-ben készült el. Az eredetileg is nagy igényességgel megépített ház minden elemében gondosan karbantartott, kiváló állapotú. Műszaki tartalom: 38-as Porotherm tégla, 5 cm hőszigeteléssel, 15 cm tetőszigeteléssel, Hofstadter nyílászárók szúnyoghálóval. A fűtést 2 kályha és egy klíma adja jelenleg, de megtörtént a radiátorok és a padlófűtés előkészítése is. A melegvizet bojlerek szolgáltatják. A földszinti, keleti fekvésű lakrészben egy hálószoba kapott helyet és egy közel 40 m2-es amerikai konyhás nappali terasz-, és pince kapcsolattal. Még egy szoba kialakítására igény esetén van lehetőség. A tetőtéri nyugati fekvésű lakrésznek egy 27 m2-es amerikai konyhás nappalija és három hálószobája van. A kertben szilva-, meggy-, cseresznye, alma-,barack-, mandula- diófák, szőlő, dísznövények és a kiváló állapotú boltíves borospince emelik tovább az ingatlan értékét. Minden részletében hamisítatlan kő-hegyi hangulat. Az ingatlan aszfaltos úton megközelíthető. A Balaton-part (Zamárdi szabadstrand) távolsága 1,5 km. Megtekintésért kérem, hívjon!

Referencia szám: M327620

Családi ház részletei

Ár: 170 000 000 Ft
Méret: 122 négyzetméter
Azonosító: 11614775
Irodai azonosító: M327620-5208477
Telek: 2493 négyzetméter
Ingatlan állapota: Kitűnő
Jelleg: családi ház
Építőanyag: Tégla
Fűtés jellege: Egyéb
Komfort fokozat: Összkomfort
Kor: 11-20 éves
Szintek száma: 1 szint
Egész szobák: 3
Fél szobák: 3

Egyéb jellemzők

  • Garázs

Térkép