Eladó ipari ingatlan Kötcse 350 000 000 Ft

Leírás

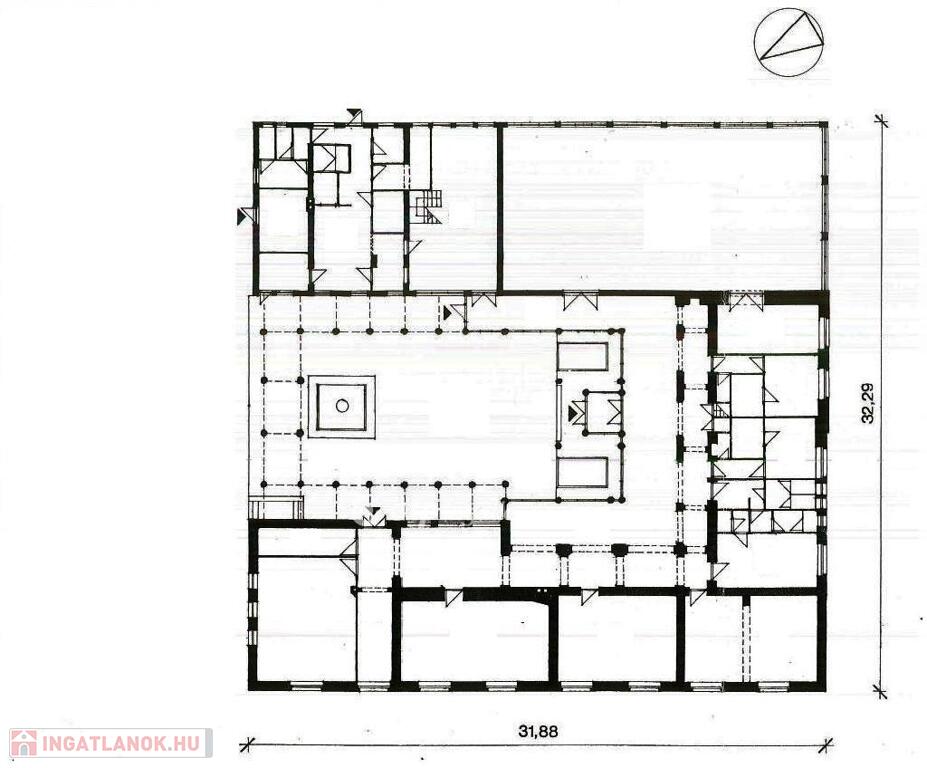
Dél-Balatonon Somogy megyében, Kötcsén néhai Kiss Sámuel kúriája eladó. Az épület, amely a település központjában helyezkedik el, 1850-ben épült, majd 1994-2000 években felújították. Ugyanebben az időben elkészült a tetőtér kialakítása, beépítése. A földszint és tetőtér együtt 872nm, melyhez 21,7nm pince tartozik. A falu, amely rendezett, szép zöld terekkel és aszfaltozott úttal rendelkezik, az M7 autópályáról 10 perc alatt elérhető kocsival. Autópályától északra jelentős települések Balatonszemes és Balatonszárszó. A településen kiemelkedő műemlék épületek, kúriák, közösségi épületek, egyházak, egyesületek találhatók, évszázados múlttal. A régió meghatározó mezőgazdasági művelési ága a szőlőtermesztés, ebből adódóan több kiemelkedő borászat és bortermelő működik a faluban. Az eladásra kínált ingatlan alkalmas lehet kereskedelmi szálláshely, vendéglátás, birtokközpont, egyesületi központ céljára, vagy fejlesztéssel, idősgondozásra. Az ingatlan több mint 2 ha-os, osztatlan belterületi telek, melyen további fejlesztési lehetőségek biztosítottak. A telek igen kedvező adottságú, tájolású, zöld területek, növényfalak határolják. Villamosenergia, víz és gáz ellátás biztosított. Az ingatlan hosszú távra bérelhető is lehet. További információkért kérem hívjon. Előre egyeztetett időpontban mutatom.

Referencia szám: M222644

Ipari ingatlan részletei

Ár: 350 000 000 Ft
Méret: 872 négyzetméter
Azonosító: 11580770
Irodai azonosító: M222644-4282125
Ingatlan állapota: Átlagos
Jelleg: egyéb
Helyiségek: 1

Térkép