Az értékesítő:
Kránicz Éva
+36 70 377 4392

Eladó családi ház Iregszemcse, 19 990 000 Ft, 68 négyzetméter

19 990 000 Ft
családi ház, 68 négyzetméter
Építőanyag:
Vegyes
Egész szobák:
2
Komfort fokozat:
Komfort
Ingatlan állapota:
Azonosító:
11572971
Értékesítés típusa:
eladó
Ingatlan típusa:
családi ház
Jelleg:
Családi ház
Település:
Iregszemcse
Alapterület:
68
Telekterület:
565
Ár:
19 990 000 Ft
Szintek száma:
Földszintes
Fűtés jellege:
Egyéb
Kor:
50 évesnél régebbi
Telekterület típusa:
négyzetméter
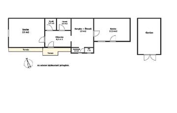
Családi ház eladó Iregszemcsén, a Balatontól mindössze 27 km-re, Tamásitól pedig 13 km-re. Az ingatlan egy 565 m2-es, teljesen körbekerített telken helyezkedik el, amely füvesített és gyümölcsfákkal telepített, így ideális pihenésre, kertészkedésre is. A 68 m2-es lakóház az 1960-as években épült, vegyes falazatú, jó állapotban lévő ingatlan. Fűtéséről cserépkályha és hűtő-fűtő klímaberendezés gondoskodik, a melegvizet villanybojler biztosítja. A ház külső téglafala 10 cm vastag szigetelést kapott, hőszigetelt műanyag nyílászárókkal rendelkezik. Tíz évvel ezelőtt teljeskörű villanyvezeték- és részleges vízvezetékcsere történt. A falak és a padlás száraz. A ház gondosan karbantartott. A lakótérben két tágas szoba, konyha, fürdőszoba, külön WC, előtér és kamra található. Az udvarban egy 32 m2-es, fedett, aknával ellátott betonos garázs épült öt éve. Az ingatlan jelenleg is lakott, a berendezés megbeszélés tárgyát képezi. Ez a ház ideális választás lehet pároknak vagy 1-2 gyermekes családoknak, de a Balaton és a Tamási termálfürdő közelsége miatt nyaralónak is tökéletes. A településen megtalálható bölcsőde, óvoda, általános iskola és gyógypedagógiai intézmény, továbbá fogorvosi és háziorvosi rendelők, gyógyszertár, posta, dohánybolt, benzinkút, étterem, pizzéria és több helyi vállalkozás is működik. A ház a központtól mindössze 6 percnyi kerékpárútra, csendes utcában található. A legközelebbi buszmegálló gyalog mindössze 3 perc alatt elérhető. Az ingatlan per-és tehermentes. Megfelel az Otthon Start program feltételeinek. További információért és megtekintésért kérem, keressen bizalommal! Referencia szám: M315150
https://ingatlanok.hu/elado/haz/iregszemcse/20-millio-ft;68-negyzetmeter;2-szoba;egyeb-futes/11572971