Az értékesítő:
Szűcs Adrienn
+36 70 698 5169

Eladó telek/földterület Tihany, 300 000 000 Ft, 1 201 Négyzetméter

300 000 000 Ft
telek/földterület, 1 201 Négyzetméter
Azonosító:
11593099
Értékesítés típusa:
eladó
Ingatlan típusa:
telek/földterület
Jelleg:
Belterület
Település:
Tihany
Telekterület:
1201
Ár:
300 000 000 Ft
Telekterület típusa:
Négyzetméter
Víz:
Nincs
Villany:
Telken belül
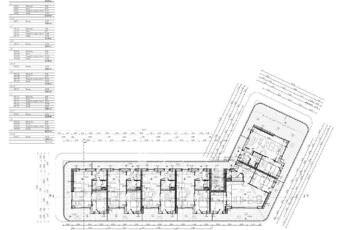
Tihany Rév Kapuja II. ütem | Fejlesztési terület engedéllyel és teljes tervdokumentációval Eladó Tihany frekventált részén, a rév közvetlen közelében található 1201 m2-es belterületi fejlesztési telek, amely a Tihany Rév Kapuja projekt második ütemének területe. Az I. ütem már megvalósult, használatbavételi engedéllyel rendelkezik, ezáltal a koncepció és a lokáció már bizonyított a piacon. -Projektparaméterek: -Telekméret: 1201 m2 -Övezeti besorolás: Vt5 -Beépíthetőség: 50% -Zöldfelület minimum: 30% Megengedett épületmagasság: 8 m Építési engedély: érvényes 12 db lakásra és 7 db földszinti üzlethelyiségre E-napló nyitva tartás: 2029-ig Lakásméretek: 46 m2- 71 m2 Teraszméretek: 12 m2-70 m2 Minden lakás Balatonra néző panorámás terasszal rendelkezik az épület íves geometriájának köszönhetően. Fejlesztési előnyök: -Az engedélyezési folyamat lezárult, azonnal indítható fejlesztés. -Külön helyrajzi számon szereplő ingatlan, tiszta jogi háttérrel. (Céggel együtt is megvásárolható) -Teljes tervdokumentáció rendelkezésre áll, beleértve az engedélyezett terveket és műszaki dokumentumokat. -A tulajdonos minden engedélyt, tervanyagot és jogi támogatást biztosít komoly érdeklődők részére. Keresett lokáció: a Tihanyi-rév térsége a Balaton egyik legnagyobb forgalmú csomópontja, stabil értéknövekedéssel és prémium fejlesztési potenciállal. Piaci pozíció: Az I. ütem sikeres megvalósítása és értékesítése megalapozza a II. ütem piaci hitelességét. A projekt a vegyes funkciójú fejlesztések kategóriájába tartozik (lakó + kereskedelmi), amely stabil hozamot biztosíthat bérbeadás és értékesítés esetén is. Tihany kiemelt turisztikai és infrastrukturális fejlesztési övezet, így a környék kiemelt befektetési célpont mind hazai, mind külföldi befektetők számára. A Tihany Rév Kapuja II. ütem egy azonnal fejleszthető, engedélyes beruházási lehetőség Tihany legnagyobb forgalmú pontján, fantasztikus panorámával és biztos piaci háttérrel. A projekt minden műszaki és jogi előfeltétele rendelkezésre áll , gyors indíthatóság, kiszámítható megtérülés, prémium lokáció!!!!!! Referencia szám: M317344
https://ingatlanok.hu/elado/telek_foldterulet/tihany/300-millio-ft;1201-negyzetmeter;udulo-besorolas;van-kozmu/11593099